Kraków, Prądnik Czerwony

Dom na wynajem

Opis nieruchomości

Z końcem marca do wynajęcia nowy dwupiętrowy dom na Czerwonym Prądniku. Obecnie wynajmowany na siedzibę firmy. Powierzchnia użytkowa ok. 500 mkw. z piwnicą. Duże możliwości adaptacji. Powierzchnia działki 5 ar. Dom jest solidnie ocieplony i wykończony w wysokim standardzie. Wysokiej klasy okna drewniane i drzwi. Marmurowe schody, estetyczne łazienki. Wysokość pomieszczeń 2,7m. Podwójny garaż w bryle budynku i kilka miejsc postojowych na posesji.
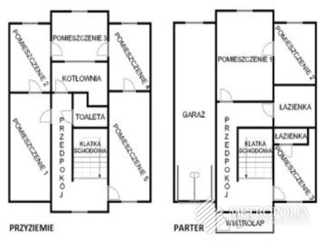
Każda kondygnacja ma 120 – 140 mkw.
parter: 2 pokoje, kuchnia, 2 łazienki, wiatrołap i podwójny garaż
I- piętro: 5 pokoi, kuchnia i 2 łazienki
II-piętro/poddasze: 5 pokoi, kuchnia i 2 łazienki
piwnice: 4 pomieszczenia, 2 łazienki, kotłownia
Ogrzewanie i ciepła woda użytkowa z pieca gazowego kondensacyjnego. Budynek okablowany pod monitoring i szybki Internet. Lokalizacja umożliwia szybki dojazd do centrum i w kierunku Warszawy. Idealne miejsce na prestiżową siedzibę firmy, małą klinikę itp.
Zapraszamy na prezentację z biurem Metroplia.


 

Nota prawna

Opis oferty zawarty na stronie internetowej sporządzany jest na podstawie oględzin nieruchomości oraz informacji uzyskanych od właściciela, może podlegać aktualizacji i nie stanowi oferty określonej w art. 66 i następnych K.C.

Szczegóły oferty

Symbol oferty MNK-DW-25265
Powierzchnia 500,00 m²
Powierzchnia użytkowa 460,00 m²
Powierzchnia działki 500 m²
Liczba pokoi 12
Rodzaj domu wolnostojący
Technologia budowlana cegła, pustak ceramiczny poroterm
Opłaty wg liczników gaz, prąd, woda
Liczba pięter w budynku 2
Wymiary działki 17 x 32 m
Stan prawny Własność
Typ kaucji jednomiesięczna
Okna DREWNIANE NOWY TYP
Instalacje ELEKTRYCZNA, WODNA, GAZOWA
Ukształtowanie działki płaska
Kształt działki prostokąt
Pokrycie dachu dachówka
Pozwolenie na użytkowanie tak
Podpiwniczenie tak
Ogrodzenie działki ogrodzona
Rok budowy 2020
Ogrzewanie C.O. GAZOWE

Lokalizacja

Napisz do nas

Proszę wypełnić to pole
Proszę wypełnić to pole
Proszę wypełnić to pole
Proszę wypełnić to pole
Trwa wysyłanie...

Ta strona wykorzystuje pliki cookies w celach statystycznych oraz w celu dostosowania naszych serwisów do indywidualnych potrzeb klientów. Zmiany ustawień dotyczących plików cookie można dokonać w dowolnej chwili modyfikując ustawienia przeglądarki. Korzystanie z tej strony bez zmian ustawień dotyczących cookies oznacza, że będą one zapisane w pamięci urządzenia.

rozumiem